Wohnausbau einer denkmalgeschützten Scheune, Bad Homburg

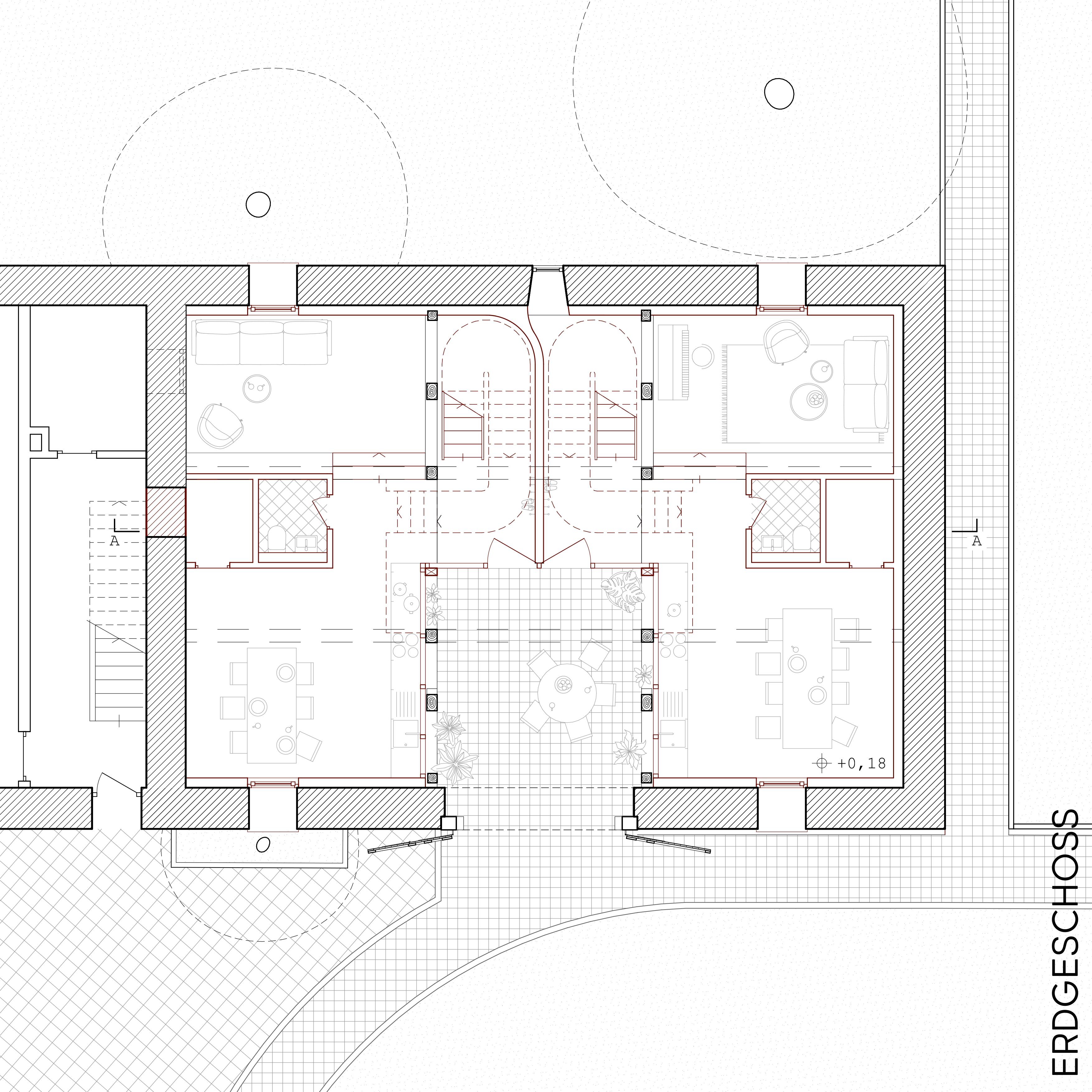
Die historische Zehntscheune im Ortskern Ober-Erlenbachs, Bad Homburg, aus dem 16. beziehungsweise 18. Jahrhundert ist als Einzelkulturdenkmal gelistet. Der überhohe Scheunenraum des ehemaligen Pferdestalls wird zum Wohnraum ausgebaut, sodass die Nutzung des Gebäudes zukunftsfähig bleibt.

PLANUNG & BAU
Seit 2025

BAUHERRSCHAFT
Privat

BGF
350m2

LPH
1-8